Gürsoylar · Minimalseries | Cortizo Alüminyum Pencere, Kapı ve Sürme Sistemler, Rehau PVC Sistemler, Hella Monoblok Panjur, Akıllı Ev

Cortizo Alüminyum Sürme Sistemler


Özellikler

Geçirgenlik
Uw = 0,9 (W/m²K)
Lütfen cam kalınlıkları ve ebatları için danışınız.
Maksimum Ses Yalıtımı
Rw=43 dB
Hava geçirimsizliği
(EN 12207) CLASS 4
Su sızdırmazlığı
(EN 12208:2000) CLASS 9A
Rüzgar yükü dayanımı
(EN 12210:2000) CLASS C5
Test referansı
4,0 x 2,4 m. 2 Kanat

4600 KALDIR-SÜR SÜRME SİSTEM

Tüm sürme serisindeki en iyi ısı yalıtım değeri olan,üst düzey yeni bir kaldır-sür sistemdir.

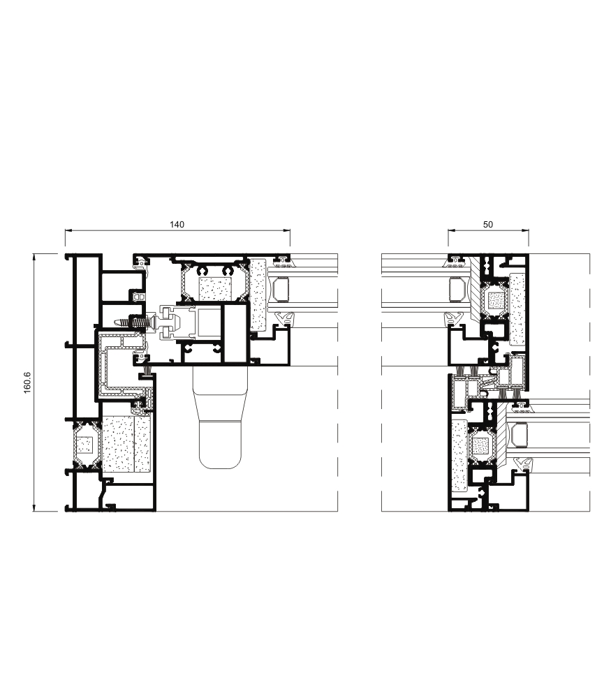
Kanat birleşim detayı için iki opsiyon sunar.110 mm standart kesitler ve 50 mm minimalist çözümler içindir.
Geniş kanat ölçüleri, bu sistemi geniş alanların kaplanması için ideal hale getirir ve aynı zamanda maksimum şeffaflık sağlar.
Kanatları ultra pürüzsüz bir şekilde açılır ve kanat, paslanmaz çelik ray üzerinde normal kullanım sonucu oluşabilecek deformasyonlara sebep vermeden çalışır.

Maksimum cam kalınlığı : 55 mm
Açılım Tipleri 2,3,4 ve 6 Kanatlı Sürme
Tek ve Üç Ray İmkanı
( 1 Kanat + 1 Sabit)
Kesitler: Kasa 160.6 mm - 3 ray 251 mm - Kanat 70 mm
Profil Kalınlığı: Pencere 2 mm
Polyamid Bariyer genişliği Kasa 35 mm / Kanat 24 mm
Maksimum Ölçüler/Kanat: Genişlik (L): 3.300 mm -- Yükseklik (H): 3.300 mm
Maksimum Ağırlık / Kanat: 400 Kg
Açılım tiplerindeki maksimum ağırlık ve ölçüleri danışınız.
  • Çift renk yapılma imkanı vardır.
  • Renkli toz boya (RAL,hareli ve sable)
  • Ahşap görünümlü toz boya
  • Anti-bakteriyel toz boya
  • Eloksal
CORTIZO

Uygulamalar

GÜRSOYLAR · Minimalseries

Cortizo 4600 Kaldır-Sür Sürme Sistem

Gürsoylar · Minimalseries | Cortizo 4600 Kaldır-Sür Sürme Sistem Gürsoylar · Minimalseries | Cortizo 4600 Kaldır-Sür Sürme Sistem

GÜRSOYLAR · Minimalseries

Cortizo 4600 Kaldır-Sür Sürme Sistem

GÜRSOYLAR · Minimalseries

Cortizo 4600 Kaldır-Sür Sürme Sistem

Gürsoylar · Minimalseries | Cortizo 4600 Kaldır-Sür Sürme Sistem Gürsoylar · Minimalseries | Cortizo 4600 Kaldır-Sür Sürme Sistem

GÜRSOYLAR · Minimalseries

Cortizo 4600 Kaldır-Sür Sürme Sistem

Whatsapp Whatsapp